Skip to product information
Plan 2224

Plan 2224

$699.00

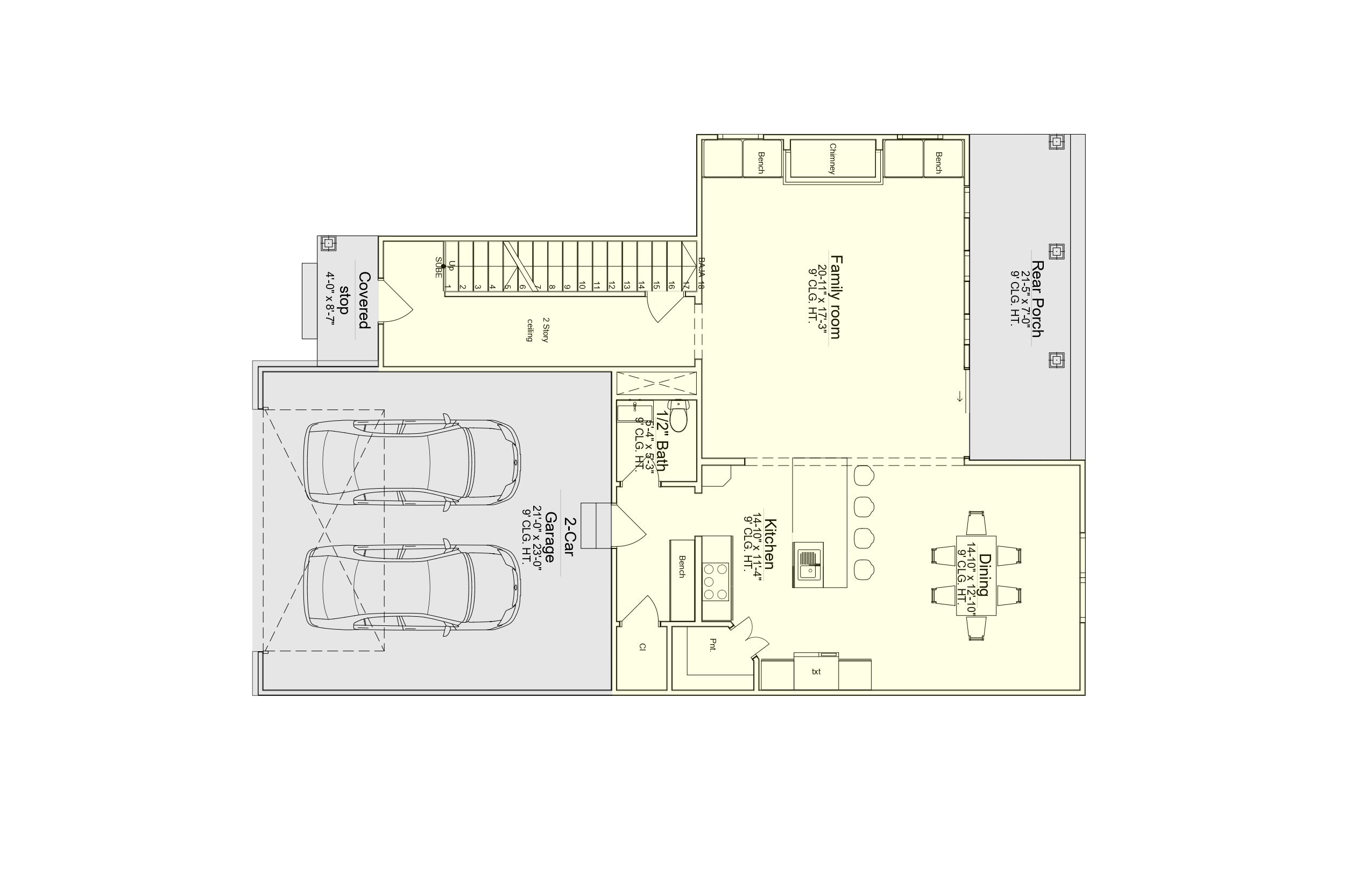
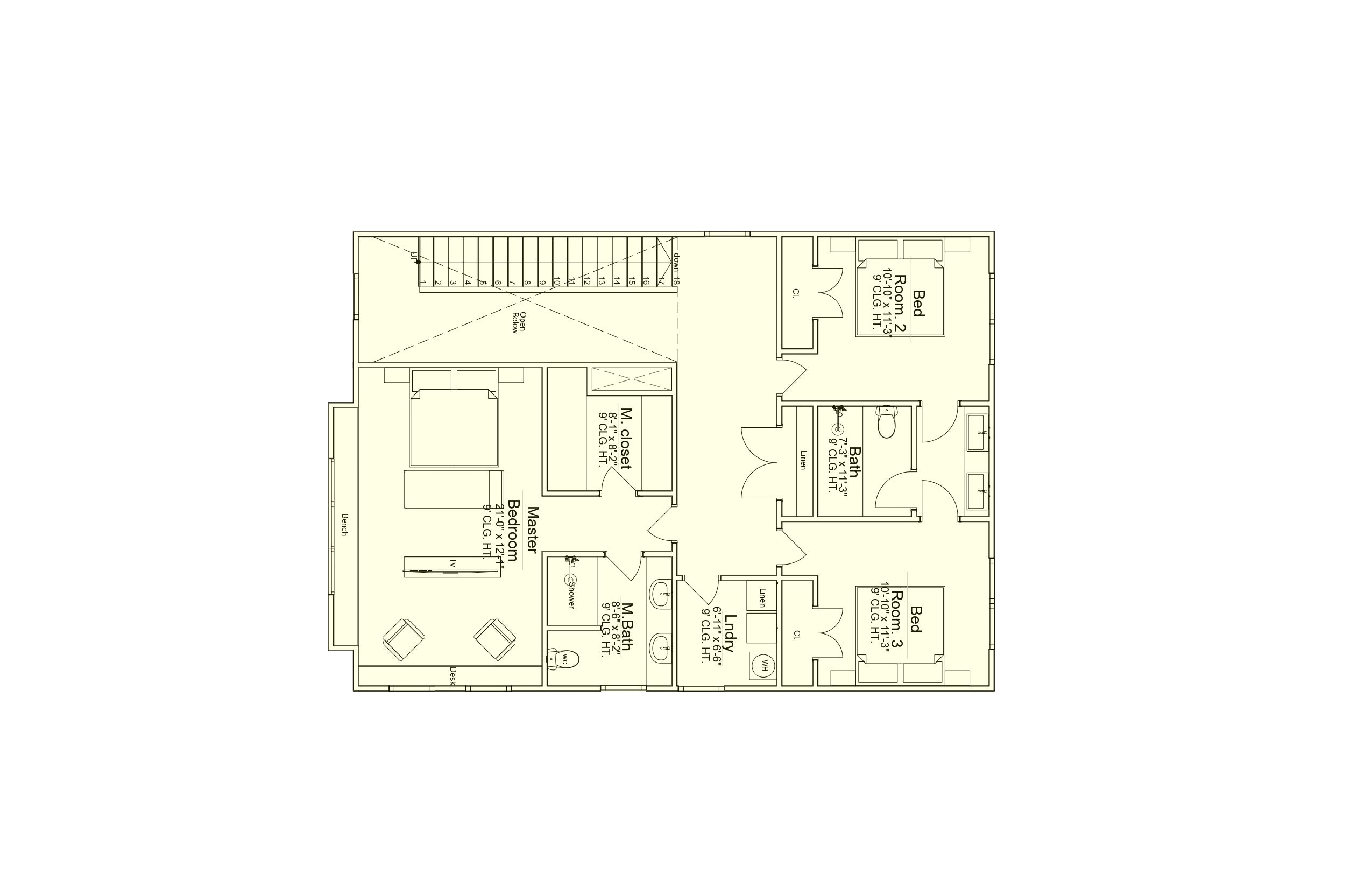
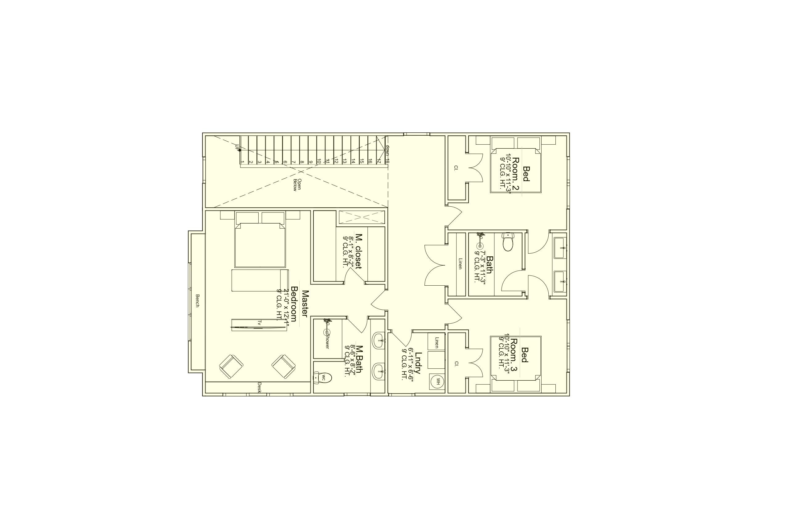
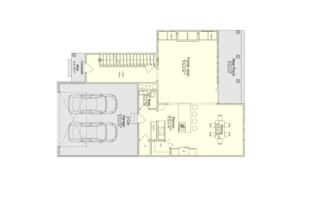
This two-story modern farmhouse design offers 2,224 square feet of thoughtfully designed living space, featuring three bedrooms and two and a half bathrooms. With its charming covered front porch, spacious rear porch, and open-concept layout, this home beautifully balances farmhouse warmth with modern comfort. The two-car garage adds convenience, while the clean lines and classic details make this design both timeless and functional for everyday living.


Specifications

  • Living Area: 2,224 sq. ft.

  • First Floor: 916 sq. ft.

  • Second Floor: 1,308 sq. ft.

  • Front Porch: 41 sq. ft.

  • Rear Porch: 165 sq. ft.

  • Garage: 2-Car (511 sq. ft.)

  • Total Construction Area: 2,330 sq. ft.

  • Bedrooms: 3

  • Bathrooms: 2.5

  • Stories: 2

  • Garage Count: 2-Car

  • Dimensions: 37' W × 55' D

  • Ceiling Height (1st Floor): 9'

  • Ceiling Height (2nd Floor): 9'

  • Maximum Height: 29' 3"

You may also like